京王富士スバル高原別荘地第2次№18-21 RH260389
一戸建て 河口湖・鳴沢村 3LDK 価格 - 万円(税込)
令和8年7月10日完成新築建売
詳細
| 所在地 | 山梨県南都留郡鳴沢村字富士山10442番283 | ||||||||||||||||||||
| 交通 | 中央自動車河口湖インターまで約11km 富士急行線河口湖駅まで約12km |
||||||||||||||||||||
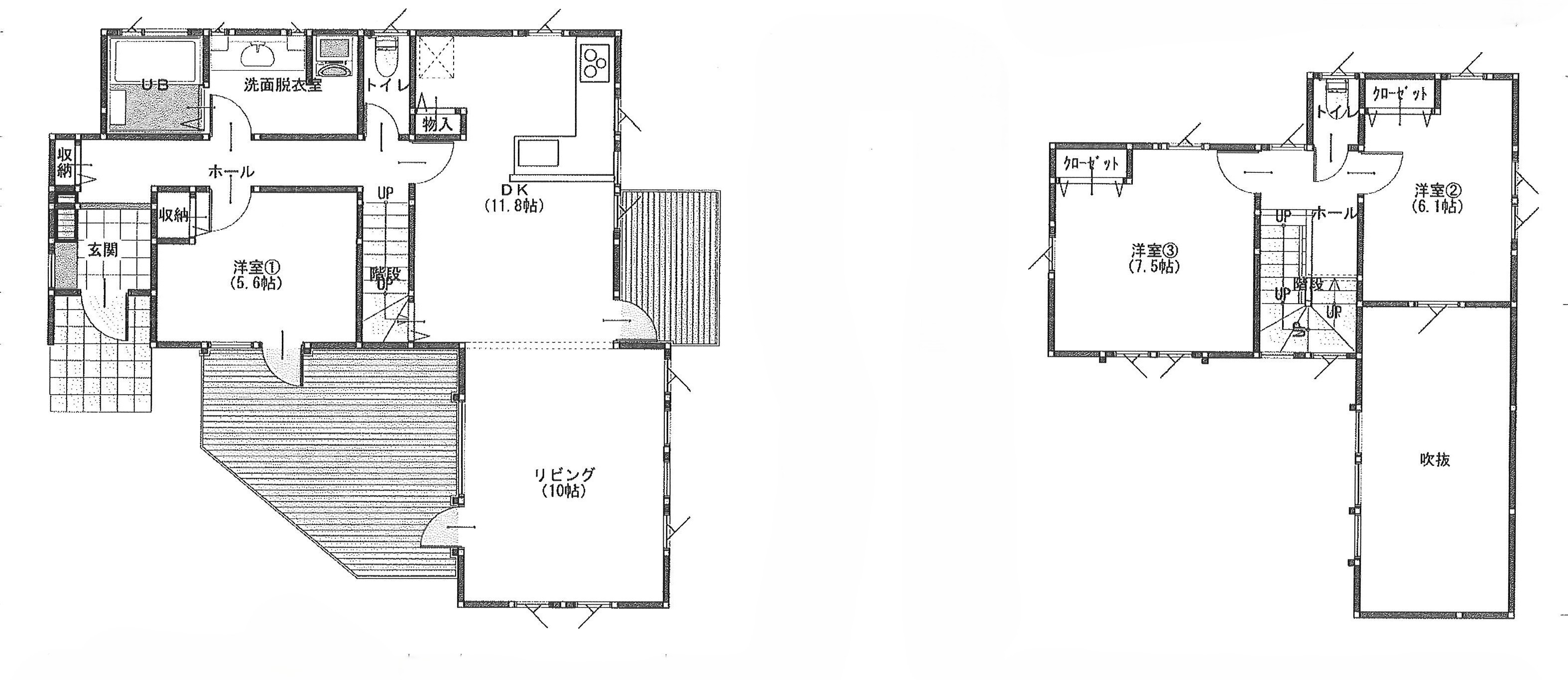
| 建物 |
|
||||||||||||||||||||
| 土地 |
|
||||||||||||||||||||
| 現況 | 建築中 | ||||||||||||||||||||
| 引渡時期 | 令和8年7月10日予定 | ||||||||||||||||||||
| 引渡条件 | 外構工事完了後 | ||||||||||||||||||||
| 法令上の制限 | ◆富士箱根伊豆国立公園普通地域
◆別荘管理規約の遵守 ※管理別荘地内の為、民泊等営業行為はできません。 |
||||||||||||||||||||
| 設備 |
|
||||||||||||||||||||
| 諸費用 |
|
||||||||||||||||||||
備考 |
◆土地代¥4,800,000.-
建物代¥30,000,000.-(内消費税¥2,727,272.-) ◆カード式ゲート ◆鳴沢ゴルフ倶楽部まで約3km ◆富士桜カントリー倶楽部まで約5km ◆富士レイクサイドカントリー倶楽部まで約3.6km ◆フォレストモール富士河口湖まで約7.1km ※管理別荘地内の為、民泊等営業行為はできません。 |
||||||||||||||||||||
| 取引態様 | 売主 |
地図
■所在地
山梨県南都留郡鳴沢村字富士山10442番283
■交通
中央自動車河口湖インターまで約11km
富士急行線河口湖駅まで約12km
フラット35 取扱店
ハリー・エステートでは、セカンドハウス購入にも最適な、住宅ローン「フラット35」を取り扱っております。
- ■最長35年間固定金利
- ■融資率90%
- ■保証料無し
- ■保証人不要











